For Sale

$799,900

526 26th Street , Brandon, Manitoba R7B2B1

Remarks

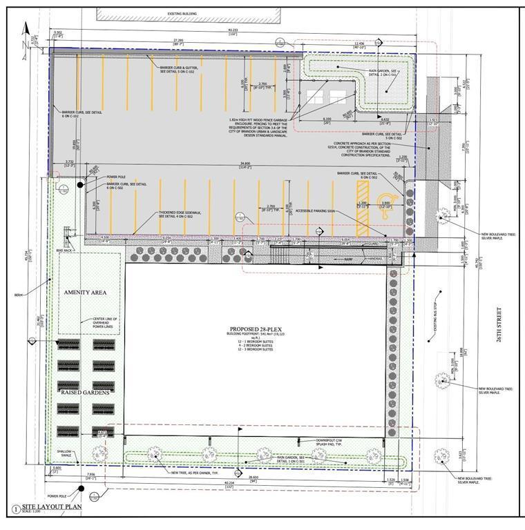
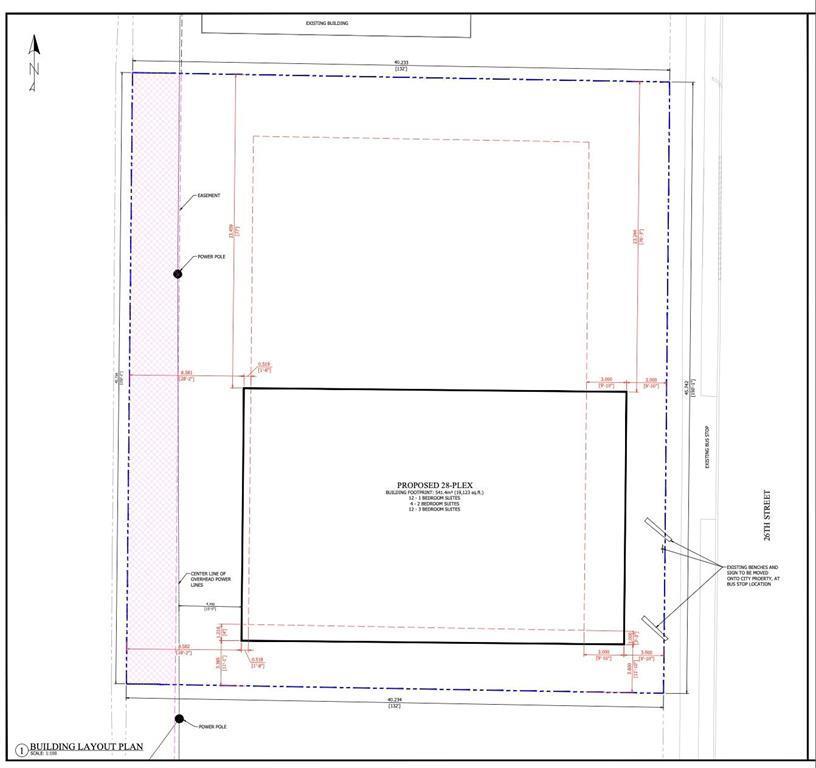
B07//Brandon/Ready for development! This CG zoned property in High traffic location is set to go for commercial or residential development. Next to Giant Tiger, McDonalds, Tim Horton's and others. Fronting on 26th street just off corner of Victoria Ave(Hwy 1A). Lot is cleared and measures 123ftx150t. Rezoning complete from CAR to advantageous CG, ESA complete, Geotech complete, Survey Yes. With 26th street redevelopment new water and sewer services just completed onto property and ready. Sidewalk, curbs and approach also just completed. Move ahead with the prepackaged 28 unit multi-family project or bring your ideas and needs!!! (id:7525)

Property Summary

  • Lot Frontage: 150.0 Feet
  • Lot Depth: 123.0 Feet
  • Lot Size: 18500 Square Feet

Property Features:

  • Ownership Type:
    Freehold
  • Property Type:
    Vacant Land

Building Features:

  • Building Type:
    Commercial Mix

Office Listing: 

Darren Giilck Sales Representative/Partner

Lifestyle
Neighbourhood Info
Judy Ferris

Judy Ferris

Sales Representative

Phone:  204.572.7767

Mobile:  204.572.7767

Fax:  204.726.1378

logo

Royal LePage Martin-Liberty Realty, Brokerage (Independently owned and operated)

633 18TH STREET
Brandon,  MB R7A5B3

Get More Info

Get More Info

Book a tour